Capannone in affitto

Montechiarugolo, Via Ponticelle - Tripoli
€ 1.300 / mese
3 locali 3 locali
198 Mq 198 Mq
2 bagni 2 bagni

Capannone in affitto

Montechiarugolo, Via Ponticelle - Tripoli

Descrizione annuncio

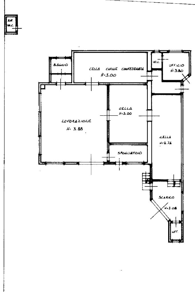
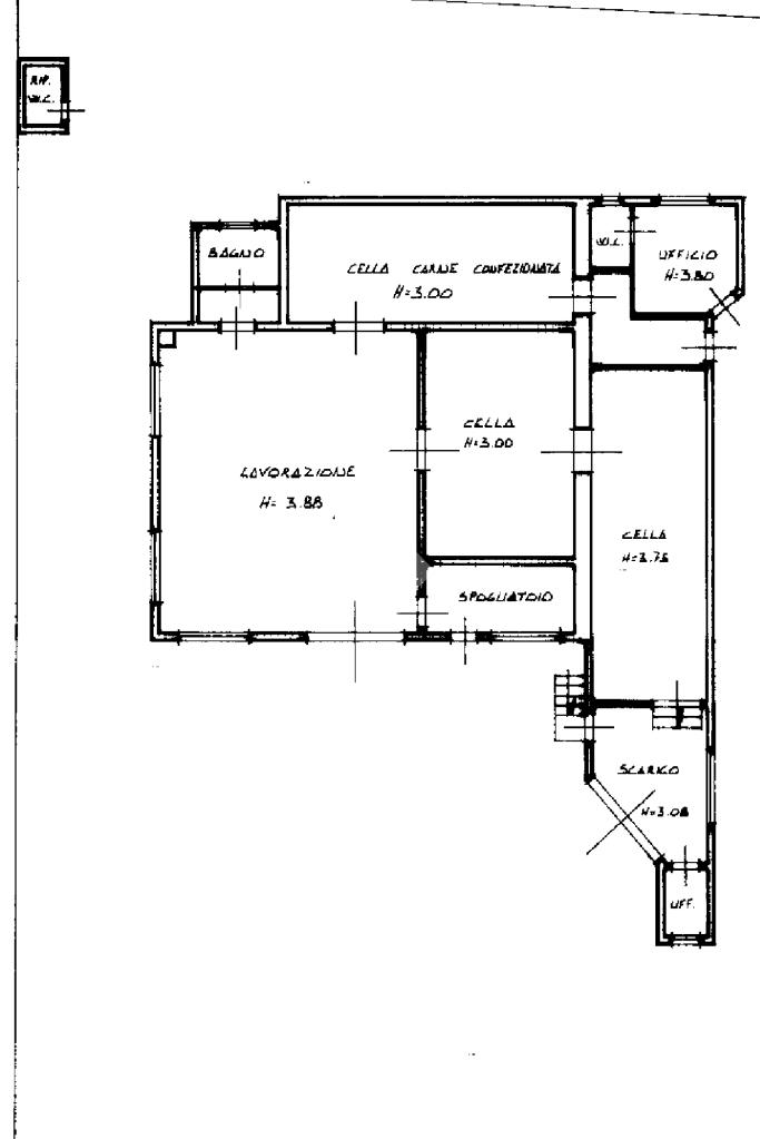
MONTICELLI TERME: fuori da Monticelli Terme proponiamo in affitto capannone di circa 198 mq, da ripristinare, con ampia area esterna.
L’immobile è composto da ingresso su spogliatoio, ampia zona di lavorazione, tre celle dedicate, antibagno e bagno, oltre a una zona scarico con comodo accesso a uno dei due uffici. Il secondo ufficio dispone invece di ingresso indipendente dall’esterno con bagno dedicato.
L'attività precedente era legata alla lavorazione e alla conservazione di alimentari, in caso si può adattarlo a molteplici attività industriali o artigianali.

Libero subito.

Referente: Marco Ferrari 3312287721 05211555305

Mostra tutto

Nelle vicinanze

Trasporto pubblico Trasporto pubblico
Monticelli Terme (Via Montepelato Sud - Cimitero)
Monticelli Terme (Via Montepelato Sud - Cimitero)
2,1 Km
Scuole Scuole
Istituto Comprensivo "Cecrope Barilli"
2,1 Km
Farmacia Farmacia
Farmacia Santa Rita
2,1 Km
Ospedali Ospedali
Ospedale Maria Luigia
1,2 Km
Negozi Negozi
Carrefour Express
2,1 Km
Ristoranti Ristoranti
Trattoria Tripoli
300 m
Pizzeria Ristorante Calaluna
1,6 Km
Mostra tutto

Caratteristiche

Rif.:
61178715
Piano:
Terra
Condizionamento:
Predisposizione impianto
Ascensore:
No
Riscaldamento:
Assente
Giardino:
Privato
Mostra tutto
Prezzo Prezzo
€ 1.300 / mese
Spese annue Spese annue
€ 0

Classe Energetica

G
G
G
G
G
G
G
G
G
EP globale non rinnovabile:
413.73 kW h/m² anno
EP invernale del fabbricato:
EP estiva del fabbricato:
Anno di costruzione:
1995
Riscaldamento:
Assente

Ti interessa visionare l'immobile?

Fissa un appuntamento  Fissa un appuntamento

Richiedi informazioni

Clicca su Leggi per aprire l'informativa
* Questi campi sono obbligatori
Affiliato
Percorso Srl
Viale Nuovo, 22 43022 Montechiarugolo (PR)
Viale Nuovo, 22 43022 Montechiarugolo (PR)
Zona: Collecchio-Felino-Sala Baganza-Langhirano-Montechiarugolo-Traversetolo-Parma Sud
Mostra su mappa
Orari: Dal lunedì al venerdì dalle ore 9 ore 13 e dalle ore 15 alle ore 20. Sabato su appuntamento
Affiliato
Percorso Srl
Viale Nuovo, 22 43022 Montechiarugolo (PR)

2026 Tecnocasa Franchising S.p.A. - P. IVA 08365160152 - Via Monte Bianco 60/A 20089 Rozzano (MI). Ogni agenzia ha un proprio titolare ed è autonoma. Privacy policy | Policy utilizzo | Cookie policy