Capannone in vendita

Parma, Str. Langhirano - Alberi
€ 200.000
3 locali 3 locali
450 Mq 450 Mq
1 bagno 1 bagno

Capannone in vendita

Parma, Str. Langhirano - Alberi

Descrizione annuncio

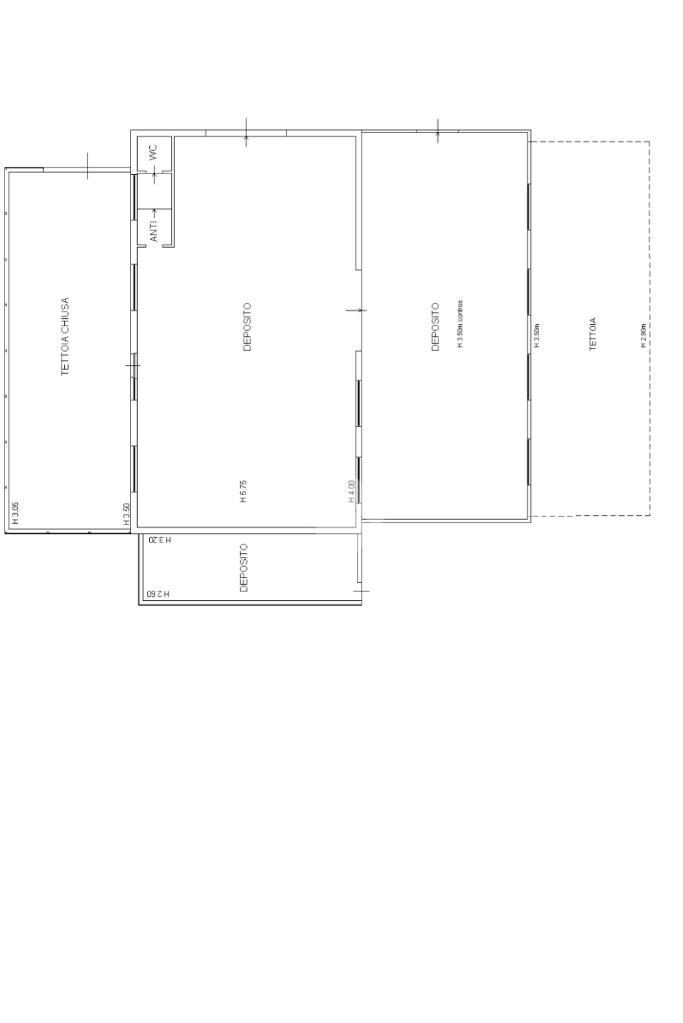
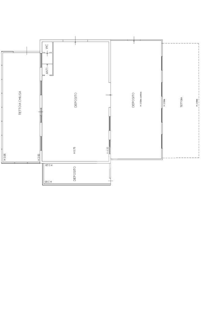
In Strada Langhirano proponiamo capannone da ristrutturare di circa 450 mq con area cortilizia privata e tettoia.
L’immobile dispone di ampi spazi interni, servizi igienici e area esterna di pertinenza dotata di tettoia e cortile esclusivo.
Ideale per magazzino o deposito.

Subito disponibile.

Referente: Marco Ferrari 3312287721 05211555305

Mostra tutto

Nelle vicinanze

Trasporto pubblico Trasporto pubblico
viale delle Scienze "Conad"
viale delle Scienze "Conad"
1,1 Km
campus
campus
1,1 Km
Ricariche auto elettriche Ricariche auto elettriche
Campus Parma | EnelX
1,2 Km
Scuole Scuole
Scuola per l'Europa Parma
630 m
Università di Parma - Campus
1,2 Km
Scuole
1,6 Km
Istituto De La Salle
1,6 Km
Scuola Primaria "Martiri di Cefalonia"
2,5 Km
Farmacia Farmacia
Farmacia Ponte Dattaro
2,8 Km
Supermercati Supermercati
Famila Superstore
900 m
Conad Campus
1,2 Km
Eurospin
1,8 Km
IN's
2,6 Km
Coop
2,7 Km
Negozi Negozi
Negozi
3,0 Km
Bar Bar
Metropolis
1,1 Km
Bar
1,1 Km
Campus Industry Music
1,3 Km
Ramon
3,0 Km
Ristoranti Ristoranti
Ristorante Giapponese Sushiko
910 m
100Montaditos Parma Campus
930 m
Old Wild West
1,1 Km
La Meta
1,3 Km
Parmarotta
1,7 Km
Mostra tutto

Caratteristiche

Rif.:
61182646
Totale piani:
1
Condizionamento:
Assente
Ascensore:
No
Riscaldamento:
Assente
Giardino:
Privato
Mostra tutto
Prezzo Prezzo
€ 200.000
Rata mutuo Rata mutuo
€ 948 / mese
Spese annue Spese annue
€ 0
Proponi il tuo prezzoProponi il tuo prezzo

Altre caratteristiche

Descrizione dei locali
Bagno Cieco

Classe Energetica

Questo immobile è esente da classe energetica
Anno di costruzione:
1964
Riscaldamento:
Assente

Ti interessa visionare l'immobile?

Fissa un appuntamento  Fissa un appuntamento

Richiedi informazioni

Clicca su Leggi per aprire l'informativa
* Questi campi sono obbligatori

Calcola il tuo mutuo

Semplice e senza impegno
Anticipo

( % )
Mutuo

( % )

pochi semplici passi

inserisci i tuoi dati
Questionario completato
Grazie per aver richiesto un appuntamento senza impegno con un nostro Consulente del Credito e Assicurativo.

Hai inserito correttamente tutti i dati necessari e a breve riceverai una e-mail con un link da convalidare per inviare i tuoi dati.
Affiliato
Percorso Srl
Viale Nuovo, 22 43022 Montechiarugolo (PR)
Viale Nuovo, 22 43022 Montechiarugolo (PR)
Zona: Collecchio-Felino-Sala Baganza-Langhirano-Montechiarugolo-Traversetolo-Parma Sud
Mostra su mappa
Orari: Dal lunedì al venerdì dalle ore 9 ore 13 e dalle ore 15 alle ore 20. Sabato su appuntamento
Affiliato
Percorso Srl
Viale Nuovo, 22 43022 Montechiarugolo (PR)

2026 Tecnocasa Franchising S.p.A. - P. IVA 08365160152 - Via Monte Bianco 60/A 20089 Rozzano (MI). Ogni agenzia ha un proprio titolare ed è autonoma. Privacy policy | Policy utilizzo | Cookie policy